Price £575 pw New Instruction

Price £575 pw - Available 31/03/2026 - Furnished


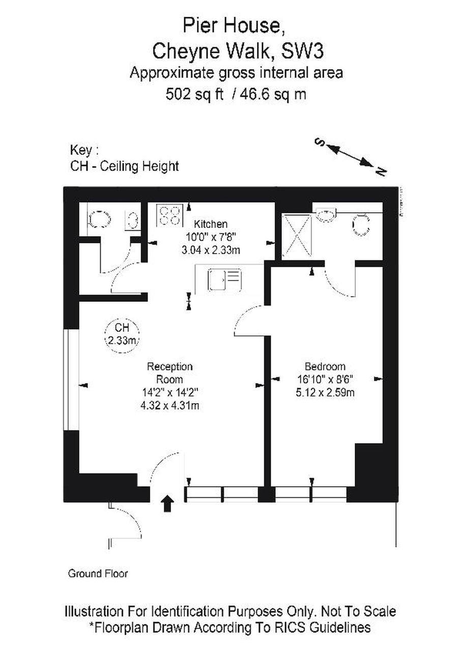
  • One double bedroom
  • En suite bathroom
  • Reception room
  • Kitchen
  • Private Entrance
  • Porter
  • Council Tax - Band F
  • EPC - Rating D
  • Off Street Parking
  • Furnished

This charming flat is situated in a highly sought after portered block on the banks of the River Thames with a private parking space

The property has been designed to exacting standards and is located a stone's throw from the infamous Kings Road and the amenities the area has to offer. Battersea Park is situated a short walk across Albert Bridge offering wide open green spaces.

The property comprises one double bedroom, one bathroom (en suite), reception room leading through to a fully equipped kitchen and separate W.C. Whilst being situated in a portered block, the property also benefits from its own front door.



Deposit: £2,875.00

Minimum Tenancy : 12 months

Council Tax
Royal Borough Of Kensington And Chelsea, Band F

Notice
All photographs are provided for guidance only.

The following are permitted payments which we may request from you:

a) The rent
b) A refundable tenancy deposit (reserved for any damages or defaults on the part of the tenant) capped at no more than five weeks' rent where the annual rent is less than £50,000, or six weeks' rent where the total annual rent is £50,000 or above
c) A refundable holding deposit (to reserve a property) capped at no more than one week's rent
d) Payments to change the tenancy when requested by the tenant, capped at £50, or reasonable costs incurred if higher
e) Payments associated with early termination of the tenancy, when requested by the tenant
f) Payments in respect of utilities, communication services, TV licence and council tax; and
g) A default fee for late payment of rent and replacement of a lost key/security device, where required under a tenancy agreement

Please call us if you wish to discuss this further.
Floor Plan
EER Chart

The Energy-Efficiency Rating is a measure of a home's overall efficiency. The higher the rating, the more energy-efficient the home is, and the lower the fuel bills are likely to be.

Utility Supply Type
Electric Mains Supply
Gas None
Water Mains Supply
Sewerage None
Broadband None
Telephone None

Other Items Description
Heating Electric Central Heating
Garden/Outside Space No
Parking Yes
Garage No

Broadband Coverage Highest Available Download Speed Highest Available Upload Speed
Standard 7 Mbps 0.8 Mbps
Superfast 80 Mbps 20 Mbps
Ultrafast 1000 Mbps 1000 Mbps

Mobile Coverage Indoor Voice Indoor Data Outdoor Voice Outdoor Data
EE Enhanced Enhanced Enhanced Enhanced
Three Enhanced Enhanced Enhanced Enhanced
O2 Enhanced Enhanced Enhanced Enhanced
Vodafone Likely Likely Enhanced Enhanced

Broadband and Mobile coverage information supplied by Ofcom.


marker icon